- 3 Chambres
- 2 Salles de bain
- 2 152 pi²
- Référence: 20183100
Cette propriété est présentée par:
Détails
-
Chambres3
-
Salles de bain2
-
Pièces8
-
Superficie2 152 pi²
-
Construction1998
Caractéristiques
| Mode de chauffage | Air soufflé |
| Approvisionnement en eau | Municipalité |
| Énergie pour le chauffage | Électricité |
| Garage | Intégré, Simple largeur |
| Stationnement | 1 Extérieur, 1 Au garage |
| Système d'égouts | Municipal |
| Vue | Sur la ville |
| Zonage | Résidentiel |
Frais et taxes
| Type | Montant | Fréquence | Année |
|---|---|---|---|
| Frais de copropriété | 10584 $ | Annuel | |
| Taxes municipales | 8432 $ | Annuel | 2026 |
| Taxes scolaires | 1060 $ | Annuel | 2026 |
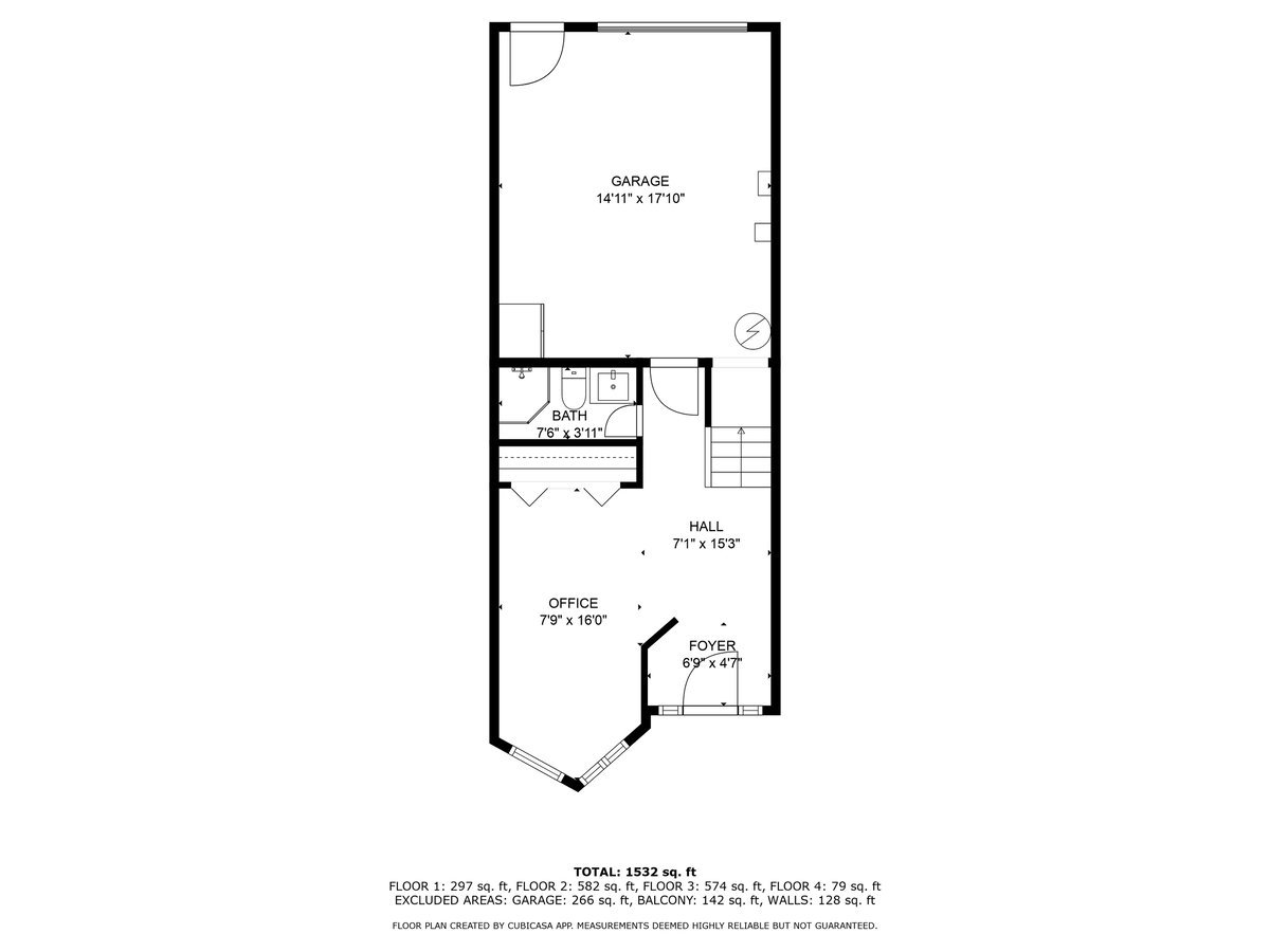
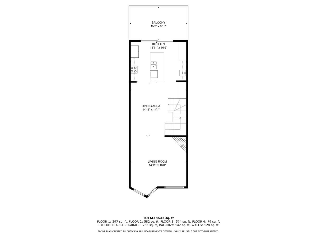
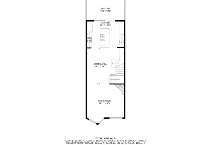
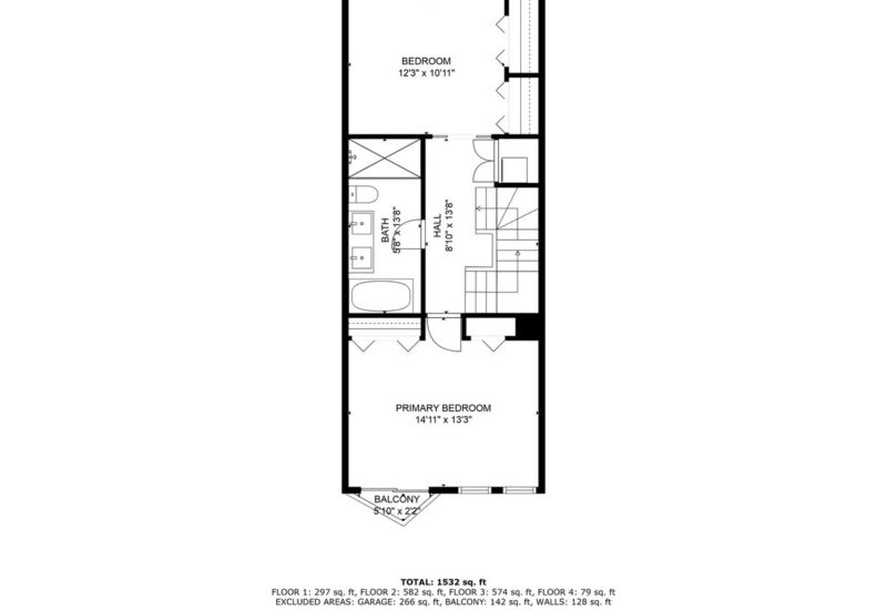
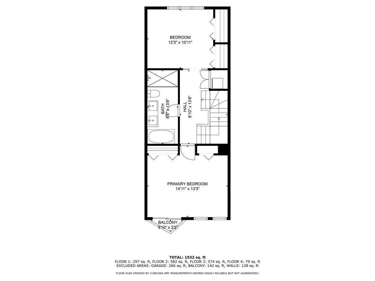
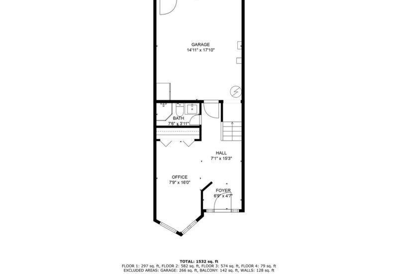
Détails des pièces
| Pièce | Taille | Étage | Sol | Notes |
|---|---|---|---|---|
| Chambre à coucher | 7.9x16 P | |||
| Salle de bains | 7.6x3.11 P | |||
| Salon | 14.11x16 P | 2ième étage | ||
| Salle à manger | 14.11x14 P | 2ième étage | ||
| Cuisine | 14.11x10.9 P | 2ième étage | ||
| Chambre à coucher principale | 14.11x13.3 P | 3ième étage | ||
| Chambre à coucher | 12.3x10.11 P | 3ième étage | ||
| Salle de bains | 5.8x13.8 P | 3ième étage |
Présentation
Découvrez cette élégante maison de ville entièrement rénovée, clé en main et vendue meublée. Offrant trois chambres et deux salles de bains, elle propose un bel équilibre entre style, confort et fonctionnalité. Les espaces de vie à aire ouverte, baignés de lumière naturelle, sont rehaussés par des finitions de qualité et une architecture distinctive. Profitez de deux espaces extérieurs, dont un balcon et une superbe terrasse sur le toit avec vue imprenable, idéale pour recevoir. Avec stationnement intérieur et extérieur, cette propriété est située à proximité du canal, du Marché Atwater, des restaurants et des boutiques. Une opportunité rare.
Toutes les dimensions sont basées sur le plan d’étage et sont approximatives. Les acheteurs sont invités à vérifier toutes les mesures de façon indépendante.
Inclu : Cuisinière, lave vaisselle, réfrigérateur, Cellier, laveuse, sécheuse, luminaires, rideaux, stores, tous les meubles intérieurs et extérieurs
Exclu : oeuvres d’art, contenus du cellier
Contactez-moi pour plus d'informations
Cette propriété est présentée par:
Jonathan Assouline
Courtier Immobilier Résidentiel
514-969-9077 [email protected] Contacter Voir le profil
