25 Rue Bélanger #302 Montréal (Rosemont/La Petite-Patrie) (Montréal)
- 1 Chambre
- 1 Salle de bain
- 746 pi²
- Référence: 28542289
Cette propriété est présentée par:
Détails
-
Chambres1
-
Salles de bain1
-
Pièces6
-
Superficie746 pi²
-
Construction2014
-
Étage3
-
Étages3
Caractéristiques
| Mode de chauffage | Plinthes électriques |
| Approvisionnement en eau | Municipalité |
| Énergie pour le chauffage | Électricité |
| Équipement disponible | , Échangeur d'air, Porte de garage électrique, Thermopompe murale |
| Garage | Intégré |
| Proximité | Autoroute/Voie rapide, Cegep, Garderie/CPE, Hôpital, Parc-espace vert, Piste cyclable, École primaire, École secondaire, Transport en commun |
| Revêtements | Aluminium, Béton, Brique |
| Stationnement | 1 Au garage |
| Système d'égouts | Municipal |
| Toiture | Membrane élastomère |
| Vue | Sur la montagne, Sur la ville |
| Zonage | Résidentiel |
Frais et taxes
| Type | Montant | Fréquence | Année |
|---|---|---|---|
| Frais de copropriété | 7392 $ | Annuel | |
| Taxes municipales | 4160 $ | Annuel | 2026 |
| Taxes scolaires | 324 $ | Annuel | 2025 |
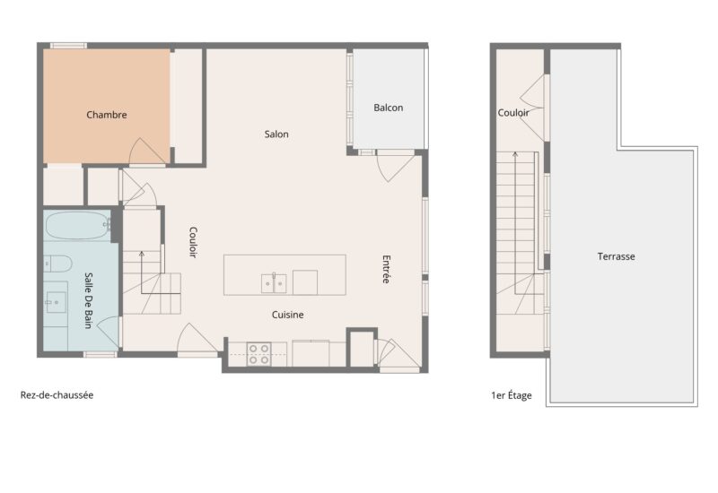
Détails des pièces
| Pièce | Taille | Étage | Sol | Notes |
|---|---|---|---|---|
| Hall d'entrée | 6.1x17.0 P | 3ième étage | Autre | |
| Salon | 11.3x13.11 P | 3ième étage | Autre | |
| Cuisine | 9.10x11.8 P | 3ième étage | Autre | |
| Bureau à domicile | 8.2x14.9 P | 3ième étage | Autre | |
| Chambre à coucher | 10.3x9.3 P | 3ième étage | Autre | |
| Salle de bains | 6.1x11.5 P | 3ième étage | Autre |
Présentation
Petite Italie — Superbe condo moderne d’une chambre avec terrasse privée sur le toit et stationnement au garage. Idéalement situé au coeur d’un quartier vibrant, à quelques pas des cafés, restaurants, marchés et du métro. Plafonds de 9 pieds et aire de vie lumineuse à concept ouvert. Cuisine contemporaine avec comptoirs en quartz et finitions soignées. Chambre confortable et bien proportionnée. Balcon privé et thermopompe murale pour un confort optimal en toute saison. Une occasion rare de vivre pleinement l’énergie urbaine avec votre propre oasis en hauteur.
Petite Italie — Condo moderne avec terrasse privée sur le toit et garage
Situé au coeur de la vibrante Petite Italie, ce superbe condo d’une chambre à coucher vous offre un cadre de vie urbain recherché, à quelques pas des cafés, restaurants, marchés et stations de métro.
L’unité se distingue par ses plafonds de 9 pieds qui amplifient la luminosité naturelle et créent une agréable sensation d’espace. L’aire de vie à concept ouvert propose une cuisine contemporaine avec comptoirs en quartz, idéale pour recevoir, et un espace salon convivial baigné de lumière grâce à sa généreuse fenestration.
La chambre propose un espace calme et bien proportionné, pensé pour le confort au quotidien.
Profitez également d’un balcon privé, parfait pour votre café du matin ou un moment de détente.
Point fort exceptionnel : profitez d’une terrasse privée sur le toit, un véritable prolongement de votre espace de vie, idéale pour les soirées d’été, les repas entre amis ou simplement relaxer avec vue sur la ville.
Un stationnement au garage et un rangement intérieur complètent parfaitement la propriété — un atout rare et précieux dans le secteur.
* Emplacement de choix* Thermopompe murale* Luminosité abondante* Terrasse privée sur le toit* Garage* Finitions modernes
Une opportunité unique de vivre l’énergie de la Petite Italie tout en bénéficiant de votre oasis privée en hauteur.
Inclu : Réfrigérateur, cuisinière, lave-vaisselle, laveuse, sécheuse, balayeuse centrale et ses accessoires, toiles solaires, table de noyer de l’ilot de cuisine, plateforme/rangement au sol (marche balcon), rangement modulaire d’ébénisterie dans le garde robe de la chambre, rideaux, bureaux sous l’escalier et accès terrasse, paravents sur la terrasse et rampe d’escalier
Contactez-moi pour plus d'informations
Cette propriété est présentée par:
Benjamin Pelletier
Courtier immobilier résidentiel et commercial
514-907-9072 [email protected] Contacter Voir le profil
