6848 Rue Marquette #6 Montréal (Rosemont/La Petite-Patrie) (Montréal)
- 2 Chambres
- 1 Salle de bain
- 750 pi²
- Référence: 24454331
Détails
-
Chambres2
-
Salles de bain1
-
Pièces6
-
Salles d'eau1
-
Superficie750 pi²
-
Étage3
-
Étages4
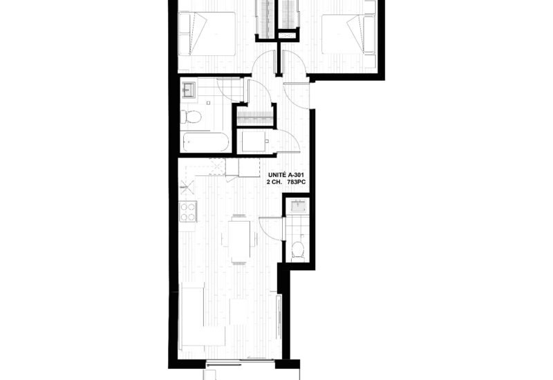
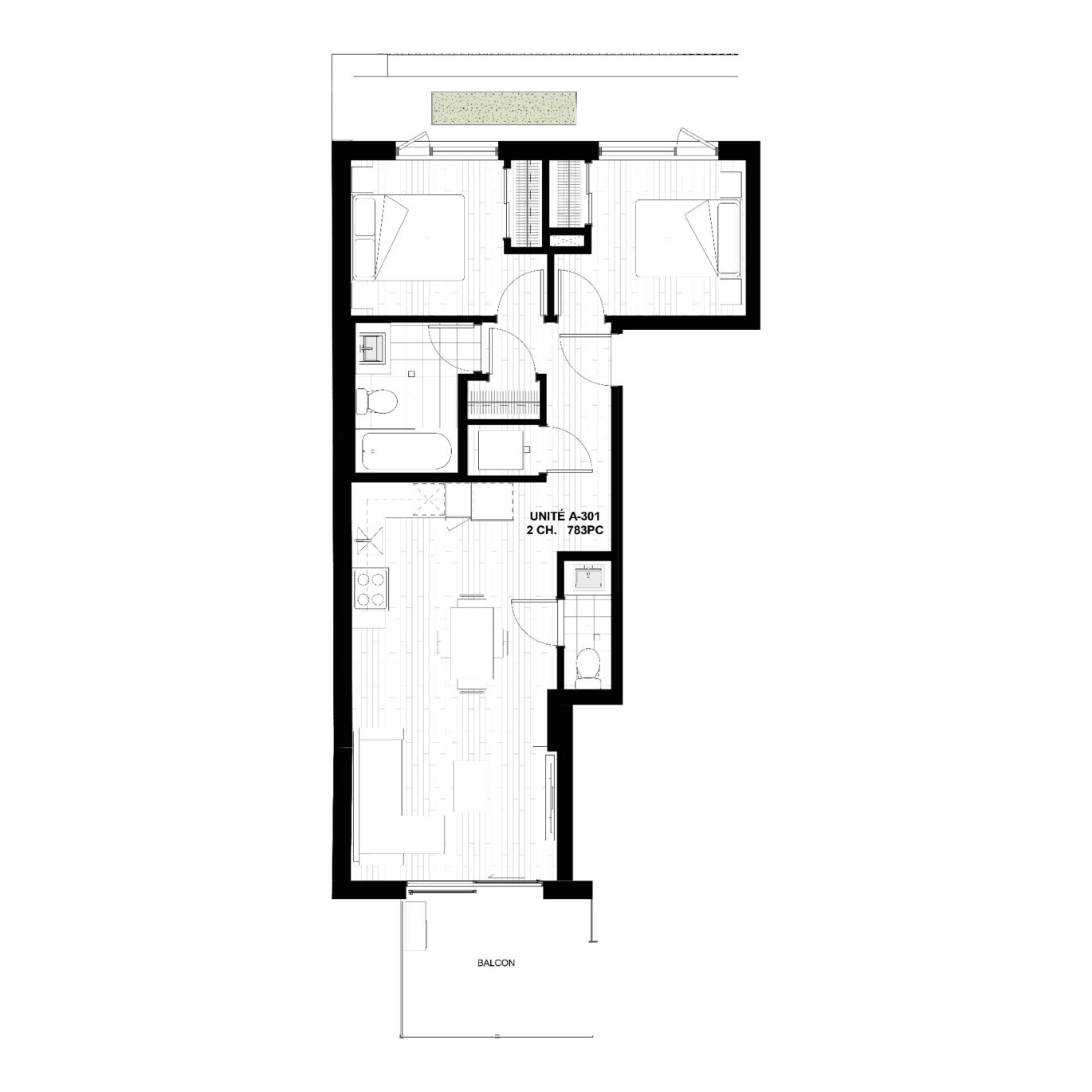
Détails des pièces
| Pièce | Taille | Étage | Sol | Notes |
|---|---|---|---|---|
| Autre | 11.3x16.0 P | 3ième étage | Plancher flottant | |
| Cuisine | 9.6x8.5 P | 3ième étage | Plancher flottant | |
| Salle d'eau | 2.9x7.3 P | 3ième étage | Céramique | |
| Salle de bains | 6.3x8.9 P | 3ième étage | Céramique | |
| Chambre à coucher principale | 8.9x9.0 P | 3ième étage | Plancher flottant | |
| Chambre à coucher | 8.8x9.0 P | 3ième étage | Plancher flottant |
Présentation
Le Rosemont — Grâce à son orientation ouest, cet appartement situé au penthouse d’une nouvelle construction profite d’une luminosité exceptionnelle tout au long de la journée. L’espace de vie à aire ouverte propose une configuration fluide et conviviale. La propriété offre deux chambres à coucher de belles dimensions avec placards, ainsi qu’une salle de bain complète et une salle d’eau attenante à l’espace de vie. Une grande terrasse privée en hauteur prolonge l’espace de vie dans un cadre intime. Une unité clé en main offrant un bel équilibre entre fonctionnalité, confort et qualité d’exécution.
Terrasses Marquette — Unité Rosemont (Penthouse)
Situé dans Rosemont La Petite Patrie, le projet des Terrasses Marquette propose un ensemble contemporain de copropriétés neuves, conçu pour offrir un équilibre optimal entre design, confort et qualité de vie urbaine. Réalisé par le promoteur Samcon, reconnu par sa fiabilité de ses réalisations.
L’immeuble, actuellement en cours de construction, bénéficie d’une conception axée sur la durabilité et le confort, incluant une insonorisation supérieure, des matériaux de qualité ainsi qu’une attention particulière portée aux détails et à la fonctionnalité des espaces.
Les unités offrent des configurations optimisée, de deux (2) ou trois (3) chambre à coucher, avec deux (2) salles de bain complètes ou une (1) salle de bain accompagnée d’une salle d’eau, selon les unités, mais tous avec des espaces de vie lumineux, à aire ouvertes, des cuisines modernes avec comptoirs en quartz, ainsi que des espaces grands espaces extérieurs privés. Certaines unités bénéficient également d’aménagements spécifiques selon leur emplacement dans l’immeuble.
Le projet s’inscrit dans un environnement dynamique, à proximité immédiate des commerces, restaurants, parcs et transports en commun, offrant un mode de vie urbain recherché.
Particularités de l’unité :
– Troisième étage (PENTHOUSE) avec espace de vie à aire ouverte orientée ouest (coté soleil)- Deux (2) chambres à coucher de belles dimensions avec placards – Une salle de bain et une salle d’eau attenante à l’espace de vie- Une grande terrasse pour recevoir, d’une superficie approximative de 90 pc
Particularités du projet :
– Projet de 22 unités de copropriété neuve, développé en 4 phases distinctes, comprenant deux immeubles de 4 unités et deux immeubles de 7 unités- Construction de qualité avec insonorisation améliorée, incluant gypse 5/8, laine isolante, membrane acoustique au plancher (type AcousBoard) et système de découplage au plafond (type AcousVibe)- Finitions modernes et matériaux durables- Espaces extérieurs généreux- Thermopompe murale (chauffage et climatisation)
Accessibilité :
– Walk Score de 86 /100 — Un emplacement idéal où la majorité des déplacements quotidiens peuvent se faire à pied- Bike Score de 100 /100 — Paradis pour les cyclistes
Informations supplémentaires :
– La superficie indiquée est brute et basée sur les plans de construction. – Les illustrations, rendus et plans sont à titre indicatif seulement et peuvent différer de la réalisation finale- Les frais de copropriété sont fournis à titre indicatif et peuvent être sujets à ajustement en fonction du budget final de la copropriété- Toute admissibilité aux remboursements de taxes relève de la responsabilité de l’acheteur
Inclu : Garde-manger, Hotte de cuisine, Chauffe-eau Giant
Exclu : Électroménagers
Contactez-moi pour plus d'informations
Cette propriété est présentée par:
Eliess Khoury
Courtier immobilier résidentiel et commercial
(514) 566-1912 [email protected] Contacter Voir le profilContactez-moi
Samia Ouertani
Courtier immobilier résidentiel et commercial
(514) 572-1213 [email protected] Contacter Voir le profilContactez-moi
Syrine Khoury
Courtier immobilier résidentiel
(514) 562-1404 [email protected] Contacter Voir le profilContactez-moi
Autres propriétés à vendre
- 3 Chambres
- 2 Salles de bain
- 1 603 pi²
- 2 Chambres
- 1 Salle de bain
- 1 001 pi²
